FOLON

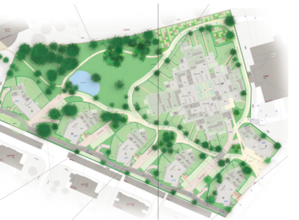
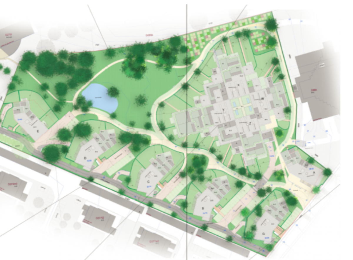
Construction d’un complexe résidentiel de 175 logements

Concept et paramètres techniques

Construction neuve de ± 125 appartements et rénovation d’un immeuble de 50 logements très basse énergie. 
Projet immobilier à taille de quartier avec une architecture ambitieuse et une recherche de solutions écologiques et simples

  • Infiltration des eaux de pluies sur site
  • Ventilation double flux à récupération de chaleur
  • Travail sur les détails d’architecture pour identifier les ponts thermiques et leurs impacts tant énergétiques que sanitaires
Mission MK   TS + ENERGIE + PEB
Réalisation   Réception provisoire (décembre 2021)
Maître d’ouvrage   DPI Extensa
Architecte   P. Blondel
Surface traitée   15.000 m² hors-sol
Budget total   23 421 247,23 €
Budget TS   5 267 173,74 €
Localité   Wavre
Credit images   Parallelus, T&P, Blondel, Lucien Ouyang